OLIVIER VAN NOORTSTRAAT 76

MEER
Over deze woning

Nieuwbouw appartement Almere Poort

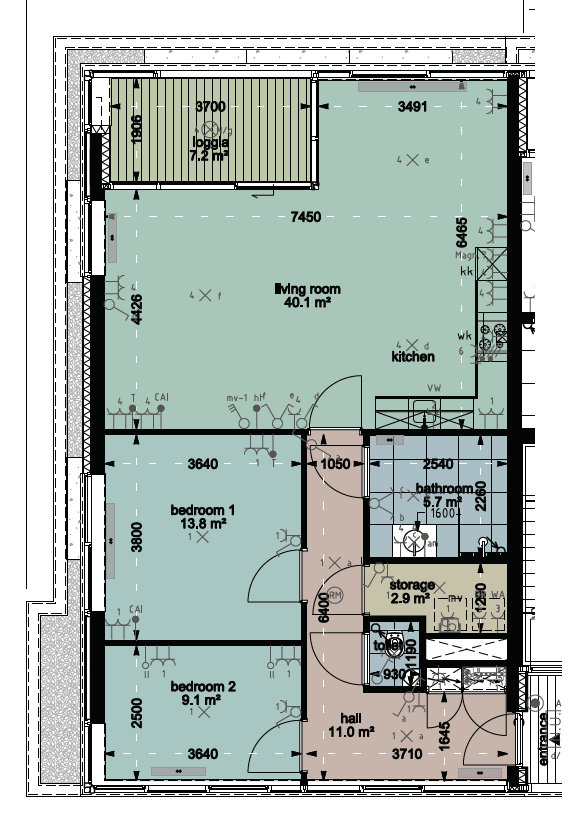
Het appartement is voorzien van twee slaapkamers, een loggia, een eigen berging en een eigen parkeerplaats in de privé parkeergarage. De woning is ingericht met een luxe keuken met inbouwapparatuur, badkamer en toilet met sanitair van Villeroy & Boch. Van alles gemakken voorzien dus. Om het nog makkelijker te maken: op de begane grond van het pand bevindt zich een Albert Heijn. Boodschappen doen is dichterbij dan ooit.

De huurprijs bedraagt €1.975 per maand exclusief G/W/E. De servicekosten bedragen €50 per maand.

Wonen in Almere Poort

De Olivier van Noortstraat is te vinden in het Columbuskwartier in Almere Poort. Dicht bij Almere Duin, waar je kan uitwaaien en dicht bij het Homeruspark: een grote groenstrook met veel ruimte om te picknicken, te spelen, te sporten of om gewoon lekker te genieten van de zon.

Het station is dichtbij. Met de trein bent u slechts twee haltes verwijderd van Almere Centrum. Daar bent u de hele dag zoet mee, want het is daar leuk shoppen, lekker wandelen en goed eten en drinken. Ook kunt u vanaf het centrum met de trein weer terug naar Almere Poort. U kunt er ook voor kiezen om te blijven zitten. Binnen 30 minuten staat u namelijk op Amsterdam Centraal. In Almere Poort zit u dus goed. Alles is dichtbij.

Eigenschappen van het appartement

  • Ruime loggia
  • Luxe badkamer
  • Open keuken
  • Aparte bergingsruimte met wasmachine- en drogeraansluiting
  • Eigen parkeerplaats in privégarage
Kenmerken
Huurprijs (per maand) €1975
Vierkante meters 88 m2
Beschikbaar 1 maart 2026
Aantal kamers 3
Aantal slaapkamers 2
Eigen parkeerplaats in garage 1
Berging 1

Wil je meer informatie?

  • Locatie

    Almere

  • Huurprijs

    1975