Columbus Living Bun Projectontwikkeling

OLIVIER VAN NOORTSTRAAT 62

MEER
Over deze woning

VERHUURD!

Nieuwbouw appartement Almere Poort

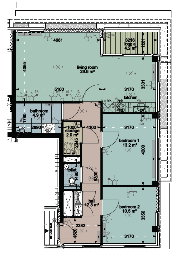
Het appartement is voorzien van twee slaapkamers, een loggia, een eigen berging en een eigen parkeerplaats in de privé parkeergarage. De woning is ingericht met een luxe keuken met inbouwapparatuur, badkamer en toilet met sanitair van Villeroy & Boch. Van alles gemakken voorzien dus. Om het nog makkelijker te maken: op de begane grond van het pand bevindt zich een Albert Heijn. Boodschappen doen is dichterbij dan ooit.

De huurprijs bedraagt €2.050 per maand exclusief G/W/E. De servicekosten bedragen €50 per maand.

Wonen in Almere Poort

De Olivier van Noortstraat is te vinden in het Columbuskwartier in Almere Poort. Dicht bij Almere Duin, waar je kan uitwaaien en dicht bij het Homeruspark: een grote groenstrook met veel ruimte om te picknicken, te spelen, te sporten of om gewoon lekker te genieten van de zon. Het station is dichtbij. Met de trein bent u slechts twee haltes verwijderd van Almere Centrum. Daar bent u de hele dag zoet mee, want het is daar leuk shoppen, lekker wandelen en goed eten en drinken. Ook kunt u vanaf het centrum met de trein weer terug naar Almere Poort. Met de trein bent u ook binnen 30 minuten op Amsterdam Centraal. In Almere Poort zit u dus goed. Alles is dichtbij.

Huurvoorwaarden

  • Minimaal een bruto inkomen van 3,5x de gevraagde huurprijs.
  • Er dient voor huuringangsdatum een waarborg betaald te worden van 2x de huur.
  • De huurprijs is excl. G/W/E en excl. servicekosten.

Dit appartement huren in Almere Poort?

Indien u geïnteresseerd bent verzoeken wij u om onderstaand formulier in te vullen. Wij zullen dan contact met u opnemen.

Kenmerken
Huurprijs (per maand) €2050
Vierkante meters 62 m2
BESCHIKBAAR PER 1 december 2025
Aantal kamers 3
Aantal slaapkamers 2
Eigen parkeerplaats 1
Berging 1

Wil je meer informatie?

  • Locatie

    Almere

  • Huurprijs

    2050